안녕하세요! 새로운 주거 기회를 찾고 계신 분들을 위해 반가운 소식을 전해드립니다. 살기 좋은 도시 과천의 중심, 과천지식정보타운에서 두 개의 블록이 각각 다른 유형의 임대주택 예비입주자를 모집합니다. 10년 후 내 집 마련을 꿈꾸는 분들을 위한 S-7블록 10년 공공임대와, 소득 수준에 맞춰 안정적인 장기 거주를 원하는 분들을 위한 S-10블록 통합공공임대 소식을 자세히 알아볼까요?
1. 내 집 마련의 꿈을 향한 디딤돌, 과천 S-7블록 10년 공공임대주택 (분양전환)


10년 동안 안정적으로 거주한 후 분양을 받아 소유권을 이전받을 수 있는 '분양전환 공공임대주택' 예비입주자 모집 공고입니다. 특히 이번 모집은 소득이나 자산 규모에 상관없이 신청할 수 있다는 점이 큰 장점입니다.
🏠 공급 위치 및 대상
- 위치: 경기도 과천시 과천대로8길 68 (갈현동, 과천그랑레브데시앙)
- 대상: 전용면적 84㎡ 주택의 예비입주자 10세대
🙋♀️ 신청 자격
이번 예비입주자 모집은 자격 요건이 비교적 유연합니다.
- 거주: 입주자모집공고일(2025.06.26) 기준, 수도권(서울, 경기, 인천)에 거주하는 만 19세 이상 성년자
- 주택소유: 무주택세대구성원 (1세대 1주택 기준)
- 소득 및 자산: 소득 및 자산 기준을 적용하지 않습니다.
- 1순위: 청약통장 가입 기간 1년 경과 및 월 납입금 12회 이상 납입자
🗓️ 주요 일정
- 1순위 청약신청: 2025년 7월 9일(수) 09:00 ~ 7월 10일(목) 16:00
- 서류제출 대상자 발표: 2025년 7월 15일(화) 16:00 이후
- 서류 제출 (등기우편): 2025년 7월 17일(목) ~ 7월 18일(금)
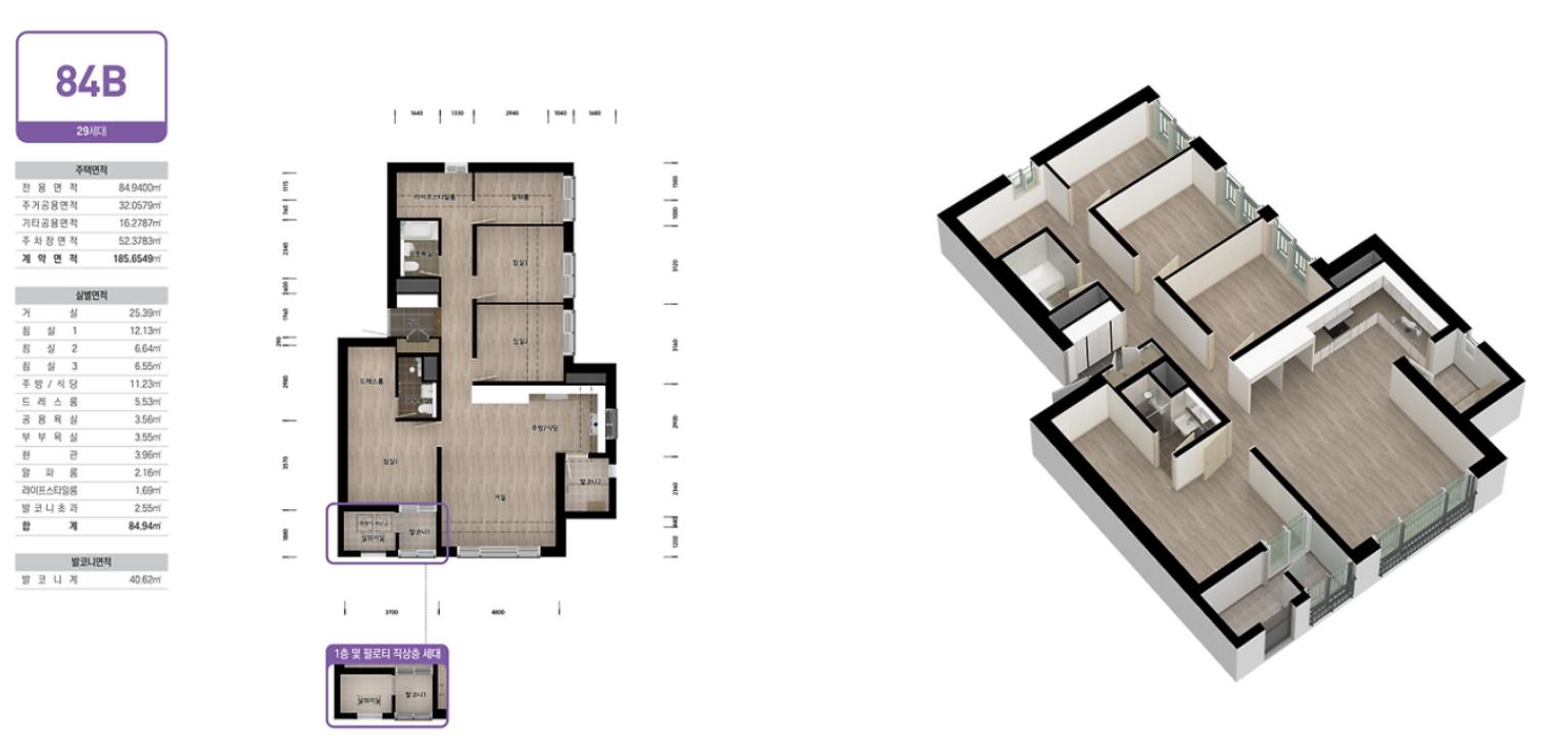
💰 임대 조건 (전용 84㎡)
임대 조건은 동·호수 구분 없이 동일하며, 10년 임대 기간 종료 후 분양 전환되는 주택입니다.
- 84A 타입: 보증금 128,389,000원 / 월 임대료 924,500원
- 84B 타입: 보증금 128,574,000원 / 월 임대료 927,070원
- 84T 타입: 보증금 120,149,000원 / 월 임대료 876,230원



⭐ 핵심 포인트!
예비입주자 모집이므로 입주까지는 대기 기간이 필요할 수 있습니다. 하지만 소득·자산 제한이 없어 자격 때문에 망설였던 분들에게는 과천에 내 집을 마련할 수 있는 좋은 기회가 될 수 있습니다.
2. 안정적인 장기 거주, 과천 S-10블록 통합공공임대주택


최대 30년간 안정적으로 거주할 수 있는 통합공공임대주택으로, 소득 수준에 따라 임대료가 다르게 책정되는 것이 특징입니다. 분양전환은 되지 않습니다.
🏠 공급 대상
- 대상 주택: 전용면적 18㎡, 26㎡, 36㎡, 46㎡, 56㎡ 등 다양한 평형의 예비입주자 총 170세대
- 주거약자용 주택(26A1, 36A1형)이 포함되어 있습니다.






🙋♀️ 신청 자격
S-10블록은 소득 및 자산 기준을 충족해야 하며, 신청 유형이 다양하게 나뉩니다.
공통: 입주자모집공고일(2025.06.30) 기준, 무주택세대구성원
- 소득 및 자산: 정해진 소득 및 자산 기준을 반드시 충족해야 합니다.
- 소득 기준은 가구원 수, 자녀 유무 등에 따라 기준 중위소득의 150%~200% 이하로 적용됩니다.
- 신청 구분: 청년, 신혼부부·한부모가족, 고령자, 일반공급, 주거약자용 주택 등 다양한 유형으로 신청할 수 있습니다.
🗓️ 주요 일정
- 청약신청: 2025년 7월 15일(화) 10:00 ~ 7월 16일(수) 16:00
- 서류제출 대상자 발표: 2025년 7월 22일(화) 14:00 이후
- 서류 제출 (등기우편): 2025년 7월 24일(목) ~ 7월 25일(금)
- 예비입주자 당첨 발표: 2025년 10월 24일(금) 14:00 이후
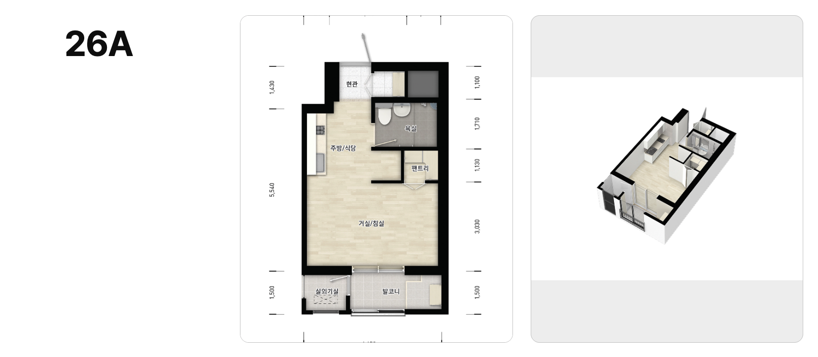
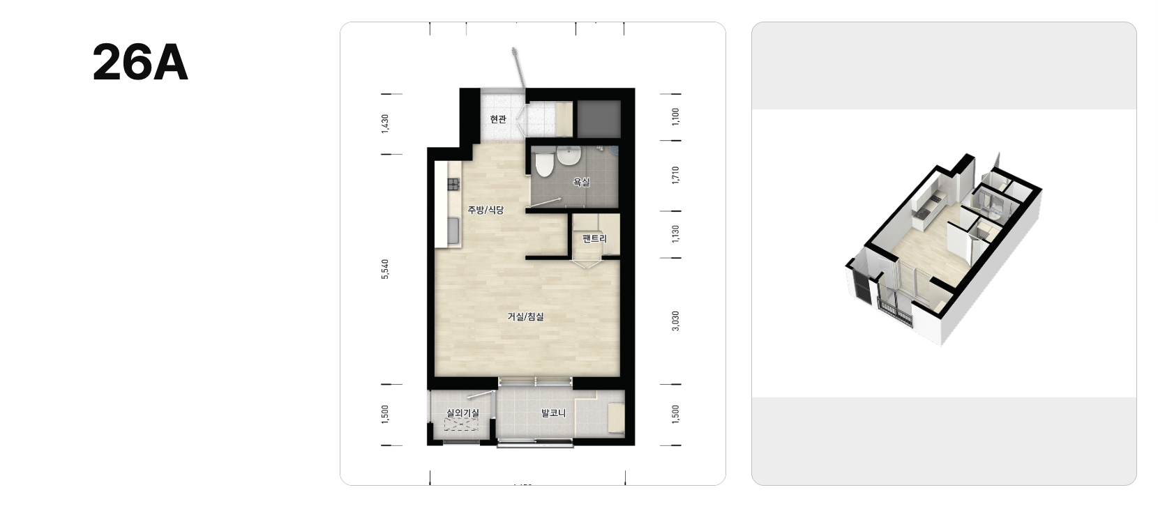
💰 임대 조건 (소득 연계형)
동일한 평형이라도 입주자의 소득 수준에 따라 임대보증금과 월 임대료가 다르게 적용됩니다.
- (예시) 26A, 26A1 타입 임대료
- 1구간 (저소득층): 보증금 30,090,000원 / 월 임대료 195,590원
- 4구간 (일반 소득층): 보증금 55,883,000원 / 월 임대료 363,240원
- 6구간 (상대적 고소득층): 보증금 77,376,000원 / 월 임대료 502,940원
⭐ 핵심 포인트!
소득과 자산 요건을 충족하고 장기적으로 안정된 주거를 원하시는 분들에게 적합한 주택입니다. 본인의 소득 수준에 따라 임대료가 달라지므로 공고문을 꼼꼼히 확인하고 신청하는 것이 중요합니다.
두 단지 모두 인터넷 및 모바일 'LH 청약플러스'를 통해서만 신청이 가능합니다. 청약을 준비하시는 모든 분들의 성공적인 내 집 마련과 주거 안정을 응원합니다! 더 자세한 내용은 반드시 LH 청약플러스 홈페이지의 공고문을 직접 확인해 주세요.
LH청약플러스
LH청약플러스
apply.lh.or.kr

'세상 탐구 생활 > 정책 이모저모' 카테고리의 다른 글
| 요즘 난리 난 2008년생·2009년생 18세 국민연금 자동가입, 제도부터 해제까지 완전 정복 (11) | 2025.07.05 |
|---|---|
| 🔥 "40조원 2025년 하반기 돈 되는 정책 총정리 새출발기금부터 7월 DSR 규제까지" (6) | 2025.07.04 |
| 2025년 청년도약계좌, 이렇게 달라집니다! (신청 자격, 혜택, 꿀팁 총정리) (9) | 2025.07.02 |
| 이재명 정부 부동산 대책 후폭풍, 주담대 6억 제한 이후 달라진 시장 현실과 앞으로의 전망 (4) | 2025.06.29 |
| 월급 빼고 다 오르는 공포, 내일부터 현실로. 수도권 지하철 1550원, 당신의 텅장은 안녕하십니까? (14) | 2025.06.27 |